
Projektentwicklung In Kooperation: |
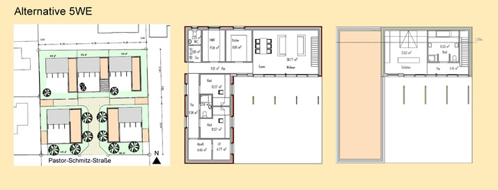
Vier Winkelhäuser im Quadrat Wesel-Obrighoven, Pastor-Schmitz-Straße 2001 |
|
|
![]() |
Auf einem Grundstück in der Nähe des evangelischen Krankenhauses Wesel im Ortsteil Wittenberg sollte ein Wohnprojekt entstehen, das durch eine innovative Lösung den Lage-Nachteil des Grundstückes an der Bundesstraße B 58 ausgleicht. Entwickelt wurde eine Gruppe von Gartenhofhäusern mit einem introvertierten, der Straße abgewandten, lärmgeschützten Freibereich. Mit der passiven Nutzung von Solarenergie durch Südorientierung der Wohnräume und verschiedenen Ausbaumöglichkeiten (Wintergarten mit Schrägverglasung) und optionaler Ausstattung mit modernen energiesparenden Heizungs- und Warmwassersystemen sollte eine Optimierung der Energiebilanz und der Energiekosten erreicht werden. |
|
|