
Städtebau ArGe
Claus Dießenbacher
Karlheinz Hasibether |
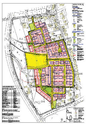
Siedlung Stallbergweg Hünxe 2002 - 2006 |
Städtebaulicher Entwurf |
Bebauungsplan |
![]() |
![]() |
| Vergrößerung durch Mausklick | |
|
Das Ziel dieses Projektes war eine Erweiterung der vorhandenen Siedlungsstruktur am Westrand der Gemeinde Hünxe auf einem Areal von 12 ha. Von besonderer Bedeutung war hierbei die hohe landschaftliche Qualität des Grundstückes und die unmittelbare Nähe zu den wichtigsten Verkehrsadern und dem Ballungsraum ´Ruhrgebiet`. Die Schnittstelle Mensch/Natur oder Stadt/Natur wurde somit zum Thema des Entwurfsprozesses. Es wurden Siedlungsstrukturen und Gebäudetypologien entwickelt, welche die Besonderheit des Ortes berücksichtigen und ein Potential für die sich veränderten Wohn- und Arbeitsverhältnisse (Introvertiertes Wohnen, Telearbeit, Wohnen in der Gruppe etc.) bieten. Das Projekt veränderte sich im Laufe der Bearbeitung. So wurde die städtebauliche Konzeption in der endgültigen Fassung des Bebauungsplanes stark verdichtet. |
|